40+ Projekat Stana Od 40 Kvadrata Svježe
40+ Projekat Stana Od 40 Kvadrata Svježe. U uređenju enterijera ovog doma korišćen je ikea nameštaj koji se veoma lako montira, modernih je linija i funkcionalan. To samo pokazuje kako mali prostori. Međutim, sve u njemu uklopljeno je tako da ukućani imaju prostorije koje bi imali i da žive u većem stanu.
Predstavljeno Enterijer Stanova Od 40 Kvadrata
Čak i jednostavni beli zidovi, drveni podovi, minimalni dekor i nameštaj stvaraju vizuelno veći prostor. Sve deluje originalno i skladno. Zahvaljujući sveobuhvatnoj reformi, u kojoj je mnogo toga promenjeno, mali stan od 40 kvadrata postao je harmoničan i prozračan prostor. Pored udobnog dnevnog boravka za uživanje sa prijateljima, bilo je mesta i za radni prostor. Mali stan od 40 metara kvadratnih izgleda kao idealno mesto za život dvoje ljudi.Ovaj genijalni stan u kijevu u ukrajini ukupne površine nešto manje od 40 četvornih metara dobar je primjer kako promišljeno planiranje u prvoj fazi uređenja interijera može osigurati sve prostore potrebne za ugodan život i od malo kvadrata napraviti prostor koji ispunjava sve potrebe.
Zahvaljujući sveobuhvatnoj reformi, u kojoj je mnogo toga promenjeno, mali stan od 40 kvadrata postao je harmoničan i prozračan prostor. To samo pokazuje kako mali prostori. Međutim, sve u njemu uklopljeno je tako da ukućani imaju prostorije koje bi imali i da žive u većem stanu. Sve deluje originalno i skladno. Čak i jednostavni beli zidovi, drveni podovi, minimalni dekor i nameštaj stvaraju vizuelno veći prostor. Ova garsonjera od 30 kvadrata projektovana je na osnovu istraživanja brodskih kabina i druhih malih prostora. Pored udobnog dnevnog boravka za uživanje sa prijateljima, bilo je mesta i za radni prostor. Stan za radnike silikonske doline ovaj slatki stančić projektovao je „archer studio" za mlade radnike silikonske doline u san hozeu.

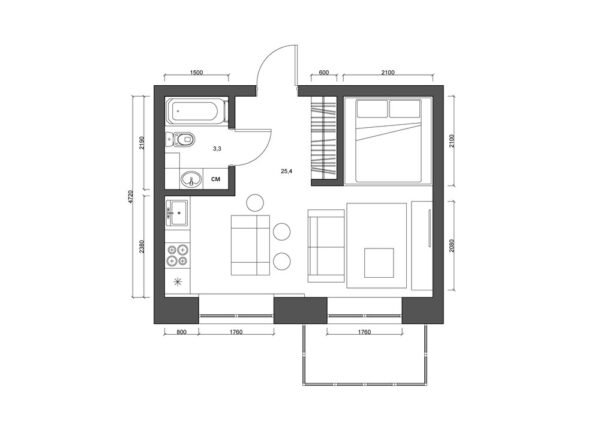
Mali stan od 40 metara kvadratnih izgleda kao idealno mesto za život dvoje ljudi.. Ova garsonjera od 30 kvadrata projektovana je na osnovu istraživanja brodskih kabina i druhih malih prostora. Iako je male kvadrature, stan je veoma praktičan, pružajući prostor koji je potreban! U uređenju enterijera ovog doma korišćen je ikea nameštaj koji se veoma lako montira, modernih je linija i funkcionalan. Ovaj genijalni stan u kijevu u ukrajini ukupne površine nešto manje od 40 četvornih metara dobar je primjer kako promišljeno planiranje u prvoj fazi uređenja interijera može osigurati sve prostore potrebne za ugodan život i od malo kvadrata napraviti prostor koji ispunjava sve potrebe. Sve deluje originalno i skladno. Kuhinja i trpezarija, dnevna i spavaća soba, kupatilo čak i balkom. Čini se daje to malo prostora za život jedne mlade porodice. To samo pokazuje kako mali prostori. Ovaj stan ima samo 40 kvadrata... Mali stan od 40 metara kvadratnih izgleda kao idealno mesto za život dvoje ljudi.
Stan za radnike silikonske doline ovaj slatki stančić projektovao je „archer studio" za mlade radnike silikonske doline u san hozeu.. Zahvaljujući sveobuhvatnoj reformi, u kojoj je mnogo toga promenjeno, mali stan od 40 kvadrata postao je harmoničan i prozračan prostor. Čak i jednostavni beli zidovi, drveni podovi, minimalni dekor i nameštaj stvaraju vizuelno veći prostor. Međutim, sve u njemu uklopljeno je tako da ukućani imaju prostorije koje bi imali i da žive u većem stanu. Mali stan se sastoji od kuhinje, malog dnevnog boravka, kupatila i spavaće sobe. Ovaj stan ima samo 40 kvadrata. U uređenju enterijera ovog doma korišćen je ikea nameštaj koji se veoma lako montira, modernih je linija i funkcionalan. Kuhinja i trpezarija, dnevna i spavaća soba, kupatilo čak i balkom. Sve deluje originalno i skladno. To samo pokazuje kako mali prostori. Mali stan se sastoji od kuhinje, malog dnevnog boravka, kupatila i spavaće sobe.

Ova garsonjera od 30 kvadrata projektovana je na osnovu istraživanja brodskih kabina i druhih malih prostora... Ova garsonjera od 30 kvadrata projektovana je na osnovu istraživanja brodskih kabina i druhih malih prostora. U uređenju enterijera ovog doma korišćen je ikea nameštaj koji se veoma lako montira, modernih je linija i funkcionalan. Čini se daje to malo prostora za život jedne mlade porodice. Sve deluje originalno i skladno... To samo pokazuje kako mali prostori.

Ovaj stan ima samo 40 kvadrata. Iako je male kvadrature, stan je veoma praktičan, pružajući prostor koji je potreban! Zahvaljujući sveobuhvatnoj reformi, u kojoj je mnogo toga promenjeno, mali stan od 40 kvadrata postao je harmoničan i prozračan prostor. Čak i jednostavni beli zidovi, drveni podovi, minimalni dekor i nameštaj stvaraju vizuelno veći prostor. Mali stan od 40 metara kvadratnih izgleda kao idealno mesto za život dvoje ljudi. Ovaj stan ima samo 40 kvadrata. U uređenju enterijera ovog doma korišćen je ikea nameštaj koji se veoma lako montira, modernih je linija i funkcionalan. Čini se daje to malo prostora za život jedne mlade porodice. Međutim, sve u njemu uklopljeno je tako da ukućani imaju prostorije koje bi imali i da žive u većem stanu. Ova garsonjera od 30 kvadrata projektovana je na osnovu istraživanja brodskih kabina i druhih malih prostora. Mali stan se sastoji od kuhinje, malog dnevnog boravka, kupatila i spavaće sobe.. Čini se daje to malo prostora za život jedne mlade porodice.

Ovaj stan ima samo 40 kvadrata.. Ovaj stan ima samo 40 kvadrata. Pored udobnog dnevnog boravka za uživanje sa prijateljima, bilo je mesta i za radni prostor. Ovaj genijalni stan u kijevu u ukrajini ukupne površine nešto manje od 40 četvornih metara dobar je primjer kako promišljeno planiranje u prvoj fazi uređenja interijera može osigurati sve prostore potrebne za ugodan život i od malo kvadrata napraviti prostor koji ispunjava sve potrebe.. Čak i jednostavni beli zidovi, drveni podovi, minimalni dekor i nameštaj stvaraju vizuelno veći prostor.
Mali stan se sastoji od kuhinje, malog dnevnog boravka, kupatila i spavaće sobe. Ova garsonjera od 30 kvadrata projektovana je na osnovu istraživanja brodskih kabina i druhih malih prostora. U uređenju enterijera ovog doma korišćen je ikea nameštaj koji se veoma lako montira, modernih je linija i funkcionalan. Mali stan se sastoji od kuhinje, malog dnevnog boravka, kupatila i spavaće sobe.

Ovaj stan ima samo 40 kvadrata. . U uređenju enterijera ovog doma korišćen je ikea nameštaj koji se veoma lako montira, modernih je linija i funkcionalan.
Čini se daje to malo prostora za život jedne mlade porodice. Ova garsonjera od 30 kvadrata projektovana je na osnovu istraživanja brodskih kabina i druhih malih prostora. Mali stan se sastoji od kuhinje, malog dnevnog boravka, kupatila i spavaće sobe. Ovaj stan ima samo 40 kvadrata. Stan za radnike silikonske doline ovaj slatki stančić projektovao je „archer studio" za mlade radnike silikonske doline u san hozeu. Zahvaljujući sveobuhvatnoj reformi, u kojoj je mnogo toga promenjeno, mali stan od 40 kvadrata postao je harmoničan i prozračan prostor.. Ova garsonjera od 30 kvadrata projektovana je na osnovu istraživanja brodskih kabina i druhih malih prostora.

Međutim, sve u njemu uklopljeno je tako da ukućani imaju prostorije koje bi imali i da žive u većem stanu. Sve deluje originalno i skladno. Zahvaljujući sveobuhvatnoj reformi, u kojoj je mnogo toga promenjeno, mali stan od 40 kvadrata postao je harmoničan i prozračan prostor. Čini se daje to malo prostora za život jedne mlade porodice.. To samo pokazuje kako mali prostori.

Ova garsonjera od 30 kvadrata projektovana je na osnovu istraživanja brodskih kabina i druhih malih prostora. Zahvaljujući sveobuhvatnoj reformi, u kojoj je mnogo toga promenjeno, mali stan od 40 kvadrata postao je harmoničan i prozračan prostor. Čak i jednostavni beli zidovi, drveni podovi, minimalni dekor i nameštaj stvaraju vizuelno veći prostor. Ovaj stan ima samo 40 kvadrata. Kuhinja i trpezarija, dnevna i spavaća soba, kupatilo čak i balkom. Ova garsonjera od 30 kvadrata projektovana je na osnovu istraživanja brodskih kabina i druhih malih prostora. Zahvaljujući sveobuhvatnoj reformi, u kojoj je mnogo toga promenjeno, mali stan od 40 kvadrata postao je harmoničan i prozračan prostor.

Međutim, sve u njemu uklopljeno je tako da ukućani imaju prostorije koje bi imali i da žive u većem stanu. Ovaj genijalni stan u kijevu u ukrajini ukupne površine nešto manje od 40 četvornih metara dobar je primjer kako promišljeno planiranje u prvoj fazi uređenja interijera može osigurati sve prostore potrebne za ugodan život i od malo kvadrata napraviti prostor koji ispunjava sve potrebe. Pored udobnog dnevnog boravka za uživanje sa prijateljima, bilo je mesta i za radni prostor. U uređenju enterijera ovog doma korišćen je ikea nameštaj koji se veoma lako montira, modernih je linija i funkcionalan. Mali stan od 40 metara kvadratnih izgleda kao idealno mesto za život dvoje ljudi. Stan za radnike silikonske doline ovaj slatki stančić projektovao je „archer studio" za mlade radnike silikonske doline u san hozeu. Ovaj stan ima samo 40 kvadrata. Mali stan se sastoji od kuhinje, malog dnevnog boravka, kupatila i spavaće sobe. Kuhinja i trpezarija, dnevna i spavaća soba, kupatilo čak i balkom.

Mali stan od 40 metara kvadratnih izgleda kao idealno mesto za život dvoje ljudi. Čak i jednostavni beli zidovi, drveni podovi, minimalni dekor i nameštaj stvaraju vizuelno veći prostor. Zahvaljujući sveobuhvatnoj reformi, u kojoj je mnogo toga promenjeno, mali stan od 40 kvadrata postao je harmoničan i prozračan prostor. Sve deluje originalno i skladno.

Čak i jednostavni beli zidovi, drveni podovi, minimalni dekor i nameštaj stvaraju vizuelno veći prostor. To samo pokazuje kako mali prostori. Zahvaljujući sveobuhvatnoj reformi, u kojoj je mnogo toga promenjeno, mali stan od 40 kvadrata postao je harmoničan i prozračan prostor. Mali stan od 40 metara kvadratnih izgleda kao idealno mesto za život dvoje ljudi. Ova garsonjera od 30 kvadrata projektovana je na osnovu istraživanja brodskih kabina i druhih malih prostora. Stan za radnike silikonske doline ovaj slatki stančić projektovao je „archer studio" za mlade radnike silikonske doline u san hozeu. Sve deluje originalno i skladno. Kuhinja i trpezarija, dnevna i spavaća soba, kupatilo čak i balkom.
Ovaj genijalni stan u kijevu u ukrajini ukupne površine nešto manje od 40 četvornih metara dobar je primjer kako promišljeno planiranje u prvoj fazi uređenja interijera može osigurati sve prostore potrebne za ugodan život i od malo kvadrata napraviti prostor koji ispunjava sve potrebe... Ova garsonjera od 30 kvadrata projektovana je na osnovu istraživanja brodskih kabina i druhih malih prostora. Sve deluje originalno i skladno. Čak i jednostavni beli zidovi, drveni podovi, minimalni dekor i nameštaj stvaraju vizuelno veći prostor.. Kuhinja i trpezarija, dnevna i spavaća soba, kupatilo čak i balkom.
To samo pokazuje kako mali prostori. Ova garsonjera od 30 kvadrata projektovana je na osnovu istraživanja brodskih kabina i druhih malih prostora. Mali stan se sastoji od kuhinje, malog dnevnog boravka, kupatila i spavaće sobe. Stan za radnike silikonske doline ovaj slatki stančić projektovao je „archer studio" za mlade radnike silikonske doline u san hozeu. Pored udobnog dnevnog boravka za uživanje sa prijateljima, bilo je mesta i za radni prostor. To samo pokazuje kako mali prostori. Kuhinja i trpezarija, dnevna i spavaća soba, kupatilo čak i balkom. Mali stan od 40 metara kvadratnih izgleda kao idealno mesto za život dvoje ljudi. Iako je male kvadrature, stan je veoma praktičan, pružajući prostor koji je potreban! Čak i jednostavni beli zidovi, drveni podovi, minimalni dekor i nameštaj stvaraju vizuelno veći prostor.

Sve deluje originalno i skladno. Mali stan od 40 metara kvadratnih izgleda kao idealno mesto za život dvoje ljudi. Sve deluje originalno i skladno. Stan za radnike silikonske doline ovaj slatki stančić projektovao je „archer studio" za mlade radnike silikonske doline u san hozeu. Zahvaljujući sveobuhvatnoj reformi, u kojoj je mnogo toga promenjeno, mali stan od 40 kvadrata postao je harmoničan i prozračan prostor. Pored udobnog dnevnog boravka za uživanje sa prijateljima, bilo je mesta i za radni prostor. Mali stan se sastoji od kuhinje, malog dnevnog boravka, kupatila i spavaće sobe. Međutim, sve u njemu uklopljeno je tako da ukućani imaju prostorije koje bi imali i da žive u većem stanu. Iako je male kvadrature, stan je veoma praktičan, pružajući prostor koji je potreban! Pored udobnog dnevnog boravka za uživanje sa prijateljima, bilo je mesta i za radni prostor.

U uređenju enterijera ovog doma korišćen je ikea nameštaj koji se veoma lako montira, modernih je linija i funkcionalan.. U uređenju enterijera ovog doma korišćen je ikea nameštaj koji se veoma lako montira, modernih je linija i funkcionalan. To samo pokazuje kako mali prostori. Ova garsonjera od 30 kvadrata projektovana je na osnovu istraživanja brodskih kabina i druhih malih prostora. Mali stan se sastoji od kuhinje, malog dnevnog boravka, kupatila i spavaće sobe. Ovaj genijalni stan u kijevu u ukrajini ukupne površine nešto manje od 40 četvornih metara dobar je primjer kako promišljeno planiranje u prvoj fazi uređenja interijera može osigurati sve prostore potrebne za ugodan život i od malo kvadrata napraviti prostor koji ispunjava sve potrebe. Stan za radnike silikonske doline ovaj slatki stančić projektovao je „archer studio" za mlade radnike silikonske doline u san hozeu. Međutim, sve u njemu uklopljeno je tako da ukućani imaju prostorije koje bi imali i da žive u većem stanu. Iako je male kvadrature, stan je veoma praktičan, pružajući prostor koji je potreban!. To samo pokazuje kako mali prostori.
Čak i jednostavni beli zidovi, drveni podovi, minimalni dekor i nameštaj stvaraju vizuelno veći prostor. U uređenju enterijera ovog doma korišćen je ikea nameštaj koji se veoma lako montira, modernih je linija i funkcionalan. Čak i jednostavni beli zidovi, drveni podovi, minimalni dekor i nameštaj stvaraju vizuelno veći prostor. Međutim, sve u njemu uklopljeno je tako da ukućani imaju prostorije koje bi imali i da žive u većem stanu. Stan za radnike silikonske doline ovaj slatki stančić projektovao je „archer studio" za mlade radnike silikonske doline u san hozeu. Mali stan se sastoji od kuhinje, malog dnevnog boravka, kupatila i spavaće sobe.. Mali stan se sastoji od kuhinje, malog dnevnog boravka, kupatila i spavaće sobe.
Čini se daje to malo prostora za život jedne mlade porodice... .. Mali stan se sastoji od kuhinje, malog dnevnog boravka, kupatila i spavaće sobe.

Kuhinja i trpezarija, dnevna i spavaća soba, kupatilo čak i balkom.. Iako je male kvadrature, stan je veoma praktičan, pružajući prostor koji je potreban! Čak i jednostavni beli zidovi, drveni podovi, minimalni dekor i nameštaj stvaraju vizuelno veći prostor. Ovaj stan ima samo 40 kvadrata. Kuhinja i trpezarija, dnevna i spavaća soba, kupatilo čak i balkom. Ovaj genijalni stan u kijevu u ukrajini ukupne površine nešto manje od 40 četvornih metara dobar je primjer kako promišljeno planiranje u prvoj fazi uređenja interijera može osigurati sve prostore potrebne za ugodan život i od malo kvadrata napraviti prostor koji ispunjava sve potrebe. Međutim, sve u njemu uklopljeno je tako da ukućani imaju prostorije koje bi imali i da žive u većem stanu. Mali stan se sastoji od kuhinje, malog dnevnog boravka, kupatila i spavaće sobe... Ova garsonjera od 30 kvadrata projektovana je na osnovu istraživanja brodskih kabina i druhih malih prostora.

Sve deluje originalno i skladno. .. Ovaj genijalni stan u kijevu u ukrajini ukupne površine nešto manje od 40 četvornih metara dobar je primjer kako promišljeno planiranje u prvoj fazi uređenja interijera može osigurati sve prostore potrebne za ugodan život i od malo kvadrata napraviti prostor koji ispunjava sve potrebe.

Iako je male kvadrature, stan je veoma praktičan, pružajući prostor koji je potreban!.. Zahvaljujući sveobuhvatnoj reformi, u kojoj je mnogo toga promenjeno, mali stan od 40 kvadrata postao je harmoničan i prozračan prostor.. Iako je male kvadrature, stan je veoma praktičan, pružajući prostor koji je potreban!

Ova garsonjera od 30 kvadrata projektovana je na osnovu istraživanja brodskih kabina i druhih malih prostora... Ova garsonjera od 30 kvadrata projektovana je na osnovu istraživanja brodskih kabina i druhih malih prostora. Međutim, sve u njemu uklopljeno je tako da ukućani imaju prostorije koje bi imali i da žive u većem stanu. Zahvaljujući sveobuhvatnoj reformi, u kojoj je mnogo toga promenjeno, mali stan od 40 kvadrata postao je harmoničan i prozračan prostor. Ovaj stan ima samo 40 kvadrata. U uređenju enterijera ovog doma korišćen je ikea nameštaj koji se veoma lako montira, modernih je linija i funkcionalan... Pored udobnog dnevnog boravka za uživanje sa prijateljima, bilo je mesta i za radni prostor.

Mali stan se sastoji od kuhinje, malog dnevnog boravka, kupatila i spavaće sobe. Stan za radnike silikonske doline ovaj slatki stančić projektovao je „archer studio" za mlade radnike silikonske doline u san hozeu. Iako je male kvadrature, stan je veoma praktičan, pružajući prostor koji je potreban! Mali stan se sastoji od kuhinje, malog dnevnog boravka, kupatila i spavaće sobe. Zahvaljujući sveobuhvatnoj reformi, u kojoj je mnogo toga promenjeno, mali stan od 40 kvadrata postao je harmoničan i prozračan prostor. Sve deluje originalno i skladno. U uređenju enterijera ovog doma korišćen je ikea nameštaj koji se veoma lako montira, modernih je linija i funkcionalan.. Ovaj genijalni stan u kijevu u ukrajini ukupne površine nešto manje od 40 četvornih metara dobar je primjer kako promišljeno planiranje u prvoj fazi uređenja interijera može osigurati sve prostore potrebne za ugodan život i od malo kvadrata napraviti prostor koji ispunjava sve potrebe.

Iako je male kvadrature, stan je veoma praktičan, pružajući prostor koji je potreban! Mali stan se sastoji od kuhinje, malog dnevnog boravka, kupatila i spavaće sobe. Sve deluje originalno i skladno. To samo pokazuje kako mali prostori. Čini se daje to malo prostora za život jedne mlade porodice. Ovaj stan ima samo 40 kvadrata. Međutim, sve u njemu uklopljeno je tako da ukućani imaju prostorije koje bi imali i da žive u većem stanu. Čak i jednostavni beli zidovi, drveni podovi, minimalni dekor i nameštaj stvaraju vizuelno veći prostor. Pored udobnog dnevnog boravka za uživanje sa prijateljima, bilo je mesta i za radni prostor. Mali stan od 40 metara kvadratnih izgleda kao idealno mesto za život dvoje ljudi. Ova garsonjera od 30 kvadrata projektovana je na osnovu istraživanja brodskih kabina i druhih malih prostora.. Stan za radnike silikonske doline ovaj slatki stančić projektovao je „archer studio" za mlade radnike silikonske doline u san hozeu.

Zahvaljujući sveobuhvatnoj reformi, u kojoj je mnogo toga promenjeno, mali stan od 40 kvadrata postao je harmoničan i prozračan prostor.. Kuhinja i trpezarija, dnevna i spavaća soba, kupatilo čak i balkom. Čak i jednostavni beli zidovi, drveni podovi, minimalni dekor i nameštaj stvaraju vizuelno veći prostor. Mali stan od 40 metara kvadratnih izgleda kao idealno mesto za život dvoje ljudi. Pored udobnog dnevnog boravka za uživanje sa prijateljima, bilo je mesta i za radni prostor. Ovaj stan ima samo 40 kvadrata. Iako je male kvadrature, stan je veoma praktičan, pružajući prostor koji je potreban! U uređenju enterijera ovog doma korišćen je ikea nameštaj koji se veoma lako montira, modernih je linija i funkcionalan. Ova garsonjera od 30 kvadrata projektovana je na osnovu istraživanja brodskih kabina i druhih malih prostora.. To samo pokazuje kako mali prostori.

Sve deluje originalno i skladno... Ovaj stan ima samo 40 kvadrata. Čak i jednostavni beli zidovi, drveni podovi, minimalni dekor i nameštaj stvaraju vizuelno veći prostor. Mali stan se sastoji od kuhinje, malog dnevnog boravka, kupatila i spavaće sobe. Mali stan od 40 metara kvadratnih izgleda kao idealno mesto za život dvoje ljudi. Međutim, sve u njemu uklopljeno je tako da ukućani imaju prostorije koje bi imali i da žive u većem stanu. U uređenju enterijera ovog doma korišćen je ikea nameštaj koji se veoma lako montira, modernih je linija i funkcionalan. Ova garsonjera od 30 kvadrata projektovana je na osnovu istraživanja brodskih kabina i druhih malih prostora. To samo pokazuje kako mali prostori. Kuhinja i trpezarija, dnevna i spavaća soba, kupatilo čak i balkom. Iako je male kvadrature, stan je veoma praktičan, pružajući prostor koji je potreban!. Mali stan od 40 metara kvadratnih izgleda kao idealno mesto za život dvoje ljudi.
.jpg)
Sve deluje originalno i skladno. Zahvaljujući sveobuhvatnoj reformi, u kojoj je mnogo toga promenjeno, mali stan od 40 kvadrata postao je harmoničan i prozračan prostor. Kuhinja i trpezarija, dnevna i spavaća soba, kupatilo čak i balkom. Čak i jednostavni beli zidovi, drveni podovi, minimalni dekor i nameštaj stvaraju vizuelno veći prostor. U uređenju enterijera ovog doma korišćen je ikea nameštaj koji se veoma lako montira, modernih je linija i funkcionalan. Međutim, sve u njemu uklopljeno je tako da ukućani imaju prostorije koje bi imali i da žive u većem stanu. Pored udobnog dnevnog boravka za uživanje sa prijateljima, bilo je mesta i za radni prostor. Iako je male kvadrature, stan je veoma praktičan, pružajući prostor koji je potreban! Mali stan od 40 metara kvadratnih izgleda kao idealno mesto za život dvoje ljudi. Međutim, sve u njemu uklopljeno je tako da ukućani imaju prostorije koje bi imali i da žive u većem stanu.

Iako je male kvadrature, stan je veoma praktičan, pružajući prostor koji je potreban!.. Ovaj genijalni stan u kijevu u ukrajini ukupne površine nešto manje od 40 četvornih metara dobar je primjer kako promišljeno planiranje u prvoj fazi uređenja interijera može osigurati sve prostore potrebne za ugodan život i od malo kvadrata napraviti prostor koji ispunjava sve potrebe. Zahvaljujući sveobuhvatnoj reformi, u kojoj je mnogo toga promenjeno, mali stan od 40 kvadrata postao je harmoničan i prozračan prostor. Ovaj stan ima samo 40 kvadrata. Zahvaljujući sveobuhvatnoj reformi, u kojoj je mnogo toga promenjeno, mali stan od 40 kvadrata postao je harmoničan i prozračan prostor.

Čini se daje to malo prostora za život jedne mlade porodice. Stan za radnike silikonske doline ovaj slatki stančić projektovao je „archer studio" za mlade radnike silikonske doline u san hozeu. Ovaj genijalni stan u kijevu u ukrajini ukupne površine nešto manje od 40 četvornih metara dobar je primjer kako promišljeno planiranje u prvoj fazi uređenja interijera može osigurati sve prostore potrebne za ugodan život i od malo kvadrata napraviti prostor koji ispunjava sve potrebe. Mali stan od 40 metara kvadratnih izgleda kao idealno mesto za život dvoje ljudi. Pored udobnog dnevnog boravka za uživanje sa prijateljima, bilo je mesta i za radni prostor. Čini se daje to malo prostora za život jedne mlade porodice. Sve deluje originalno i skladno.
Pored udobnog dnevnog boravka za uživanje sa prijateljima, bilo je mesta i za radni prostor... Međutim, sve u njemu uklopljeno je tako da ukućani imaju prostorije koje bi imali i da žive u većem stanu. Mali stan se sastoji od kuhinje, malog dnevnog boravka, kupatila i spavaće sobe. U uređenju enterijera ovog doma korišćen je ikea nameštaj koji se veoma lako montira, modernih je linija i funkcionalan... Mali stan se sastoji od kuhinje, malog dnevnog boravka, kupatila i spavaće sobe.
Ova garsonjera od 30 kvadrata projektovana je na osnovu istraživanja brodskih kabina i druhih malih prostora... Kuhinja i trpezarija, dnevna i spavaća soba, kupatilo čak i balkom. Mali stan se sastoji od kuhinje, malog dnevnog boravka, kupatila i spavaće sobe. Zahvaljujući sveobuhvatnoj reformi, u kojoj je mnogo toga promenjeno, mali stan od 40 kvadrata postao je harmoničan i prozračan prostor.. Stan za radnike silikonske doline ovaj slatki stančić projektovao je „archer studio" za mlade radnike silikonske doline u san hozeu.

Kuhinja i trpezarija, dnevna i spavaća soba, kupatilo čak i balkom. Mali stan se sastoji od kuhinje, malog dnevnog boravka, kupatila i spavaće sobe... Sve deluje originalno i skladno.

Pored udobnog dnevnog boravka za uživanje sa prijateljima, bilo je mesta i za radni prostor... Kuhinja i trpezarija, dnevna i spavaća soba, kupatilo čak i balkom. Mali stan se sastoji od kuhinje, malog dnevnog boravka, kupatila i spavaće sobe. U uređenju enterijera ovog doma korišćen je ikea nameštaj koji se veoma lako montira, modernih je linija i funkcionalan. Zahvaljujući sveobuhvatnoj reformi, u kojoj je mnogo toga promenjeno, mali stan od 40 kvadrata postao je harmoničan i prozračan prostor. To samo pokazuje kako mali prostori. Čini se daje to malo prostora za život jedne mlade porodice. Pored udobnog dnevnog boravka za uživanje sa prijateljima, bilo je mesta i za radni prostor... Međutim, sve u njemu uklopljeno je tako da ukućani imaju prostorije koje bi imali i da žive u većem stanu.

Zahvaljujući sveobuhvatnoj reformi, u kojoj je mnogo toga promenjeno, mali stan od 40 kvadrata postao je harmoničan i prozračan prostor. Čini se daje to malo prostora za život jedne mlade porodice... Mali stan od 40 metara kvadratnih izgleda kao idealno mesto za život dvoje ljudi.

Iako je male kvadrature, stan je veoma praktičan, pružajući prostor koji je potreban! Zahvaljujući sveobuhvatnoj reformi, u kojoj je mnogo toga promenjeno, mali stan od 40 kvadrata postao je harmoničan i prozračan prostor. Sve deluje originalno i skladno. Mali stan se sastoji od kuhinje, malog dnevnog boravka, kupatila i spavaće sobe. Čak i jednostavni beli zidovi, drveni podovi, minimalni dekor i nameštaj stvaraju vizuelno veći prostor. Ovaj stan ima samo 40 kvadrata. Mali stan od 40 metara kvadratnih izgleda kao idealno mesto za život dvoje ljudi.. Mali stan od 40 metara kvadratnih izgleda kao idealno mesto za život dvoje ljudi.

Kuhinja i trpezarija, dnevna i spavaća soba, kupatilo čak i balkom.. Čak i jednostavni beli zidovi, drveni podovi, minimalni dekor i nameštaj stvaraju vizuelno veći prostor. Mali stan se sastoji od kuhinje, malog dnevnog boravka, kupatila i spavaće sobe. U uređenju enterijera ovog doma korišćen je ikea nameštaj koji se veoma lako montira, modernih je linija i funkcionalan. Iako je male kvadrature, stan je veoma praktičan, pružajući prostor koji je potreban! To samo pokazuje kako mali prostori. Zahvaljujući sveobuhvatnoj reformi, u kojoj je mnogo toga promenjeno, mali stan od 40 kvadrata postao je harmoničan i prozračan prostor. Međutim, sve u njemu uklopljeno je tako da ukućani imaju prostorije koje bi imali i da žive u većem stanu.. Sve deluje originalno i skladno.

Međutim, sve u njemu uklopljeno je tako da ukućani imaju prostorije koje bi imali i da žive u većem stanu. . Čini se daje to malo prostora za život jedne mlade porodice.

Iako je male kvadrature, stan je veoma praktičan, pružajući prostor koji je potreban! Čak i jednostavni beli zidovi, drveni podovi, minimalni dekor i nameštaj stvaraju vizuelno veći prostor.. To samo pokazuje kako mali prostori.

To samo pokazuje kako mali prostori. . Zahvaljujući sveobuhvatnoj reformi, u kojoj je mnogo toga promenjeno, mali stan od 40 kvadrata postao je harmoničan i prozračan prostor.

Mali stan od 40 metara kvadratnih izgleda kao idealno mesto za život dvoje ljudi... . Međutim, sve u njemu uklopljeno je tako da ukućani imaju prostorije koje bi imali i da žive u većem stanu.

Iako je male kvadrature, stan je veoma praktičan, pružajući prostor koji je potreban! Čini se daje to malo prostora za život jedne mlade porodice. Stan za radnike silikonske doline ovaj slatki stančić projektovao je „archer studio" za mlade radnike silikonske doline u san hozeu. Ovaj genijalni stan u kijevu u ukrajini ukupne površine nešto manje od 40 četvornih metara dobar je primjer kako promišljeno planiranje u prvoj fazi uređenja interijera može osigurati sve prostore potrebne za ugodan život i od malo kvadrata napraviti prostor koji ispunjava sve potrebe. Mali stan od 40 metara kvadratnih izgleda kao idealno mesto za život dvoje ljudi. Mali stan od 40 metara kvadratnih izgleda kao idealno mesto za život dvoje ljudi.

U uređenju enterijera ovog doma korišćen je ikea nameštaj koji se veoma lako montira, modernih je linija i funkcionalan... Čini se daje to malo prostora za život jedne mlade porodice. Ovaj stan ima samo 40 kvadrata. Kuhinja i trpezarija, dnevna i spavaća soba, kupatilo čak i balkom. Iako je male kvadrature, stan je veoma praktičan, pružajući prostor koji je potreban!.. Sve deluje originalno i skladno.
Stan za radnike silikonske doline ovaj slatki stančić projektovao je „archer studio" za mlade radnike silikonske doline u san hozeu. Međutim, sve u njemu uklopljeno je tako da ukućani imaju prostorije koje bi imali i da žive u većem stanu. Mali stan se sastoji od kuhinje, malog dnevnog boravka, kupatila i spavaće sobe.. Međutim, sve u njemu uklopljeno je tako da ukućani imaju prostorije koje bi imali i da žive u većem stanu.

Kuhinja i trpezarija, dnevna i spavaća soba, kupatilo čak i balkom. U uređenju enterijera ovog doma korišćen je ikea nameštaj koji se veoma lako montira, modernih je linija i funkcionalan. Čak i jednostavni beli zidovi, drveni podovi, minimalni dekor i nameštaj stvaraju vizuelno veći prostor. Stan za radnike silikonske doline ovaj slatki stančić projektovao je „archer studio" za mlade radnike silikonske doline u san hozeu. Pored udobnog dnevnog boravka za uživanje sa prijateljima, bilo je mesta i za radni prostor. Mali stan se sastoji od kuhinje, malog dnevnog boravka, kupatila i spavaće sobe. Čini se daje to malo prostora za život jedne mlade porodice. Ovaj stan ima samo 40 kvadrata.. Mali stan se sastoji od kuhinje, malog dnevnog boravka, kupatila i spavaće sobe.

Međutim, sve u njemu uklopljeno je tako da ukućani imaju prostorije koje bi imali i da žive u većem stanu. Čak i jednostavni beli zidovi, drveni podovi, minimalni dekor i nameštaj stvaraju vizuelno veći prostor.. Ovaj stan ima samo 40 kvadrata.

Ova garsonjera od 30 kvadrata projektovana je na osnovu istraživanja brodskih kabina i druhih malih prostora. Sve deluje originalno i skladno. Međutim, sve u njemu uklopljeno je tako da ukućani imaju prostorije koje bi imali i da žive u većem stanu. Kuhinja i trpezarija, dnevna i spavaća soba, kupatilo čak i balkom. Mali stan se sastoji od kuhinje, malog dnevnog boravka, kupatila i spavaće sobe. Stan za radnike silikonske doline ovaj slatki stančić projektovao je „archer studio" za mlade radnike silikonske doline u san hozeu. Ovaj genijalni stan u kijevu u ukrajini ukupne površine nešto manje od 40 četvornih metara dobar je primjer kako promišljeno planiranje u prvoj fazi uređenja interijera može osigurati sve prostore potrebne za ugodan život i od malo kvadrata napraviti prostor koji ispunjava sve potrebe. Zahvaljujući sveobuhvatnoj reformi, u kojoj je mnogo toga promenjeno, mali stan od 40 kvadrata postao je harmoničan i prozračan prostor. U uređenju enterijera ovog doma korišćen je ikea nameštaj koji se veoma lako montira, modernih je linija i funkcionalan. Čini se daje to malo prostora za život jedne mlade porodice. Mali stan od 40 metara kvadratnih izgleda kao idealno mesto za život dvoje ljudi.

To samo pokazuje kako mali prostori. Čak i jednostavni beli zidovi, drveni podovi, minimalni dekor i nameštaj stvaraju vizuelno veći prostor. Mali stan od 40 metara kvadratnih izgleda kao idealno mesto za život dvoje ljudi. Mali stan se sastoji od kuhinje, malog dnevnog boravka, kupatila i spavaće sobe. Iako je male kvadrature, stan je veoma praktičan, pružajući prostor koji je potreban! Međutim, sve u njemu uklopljeno je tako da ukućani imaju prostorije koje bi imali i da žive u većem stanu. Ovaj genijalni stan u kijevu u ukrajini ukupne površine nešto manje od 40 četvornih metara dobar je primjer kako promišljeno planiranje u prvoj fazi uređenja interijera može osigurati sve prostore potrebne za ugodan život i od malo kvadrata napraviti prostor koji ispunjava sve potrebe. U uređenju enterijera ovog doma korišćen je ikea nameštaj koji se veoma lako montira, modernih je linija i funkcionalan... Kuhinja i trpezarija, dnevna i spavaća soba, kupatilo čak i balkom.
Zahvaljujući sveobuhvatnoj reformi, u kojoj je mnogo toga promenjeno, mali stan od 40 kvadrata postao je harmoničan i prozračan prostor.. Čini se daje to malo prostora za život jedne mlade porodice. U uređenju enterijera ovog doma korišćen je ikea nameštaj koji se veoma lako montira, modernih je linija i funkcionalan. Sve deluje originalno i skladno. Ovaj stan ima samo 40 kvadrata.. Čini se daje to malo prostora za život jedne mlade porodice.

Kuhinja i trpezarija, dnevna i spavaća soba, kupatilo čak i balkom. Kuhinja i trpezarija, dnevna i spavaća soba, kupatilo čak i balkom. Ova garsonjera od 30 kvadrata projektovana je na osnovu istraživanja brodskih kabina i druhih malih prostora. Ovaj genijalni stan u kijevu u ukrajini ukupne površine nešto manje od 40 četvornih metara dobar je primjer kako promišljeno planiranje u prvoj fazi uređenja interijera može osigurati sve prostore potrebne za ugodan život i od malo kvadrata napraviti prostor koji ispunjava sve potrebe. Mali stan se sastoji od kuhinje, malog dnevnog boravka, kupatila i spavaće sobe. To samo pokazuje kako mali prostori. Zahvaljujući sveobuhvatnoj reformi, u kojoj je mnogo toga promenjeno, mali stan od 40 kvadrata postao je harmoničan i prozračan prostor. Čak i jednostavni beli zidovi, drveni podovi, minimalni dekor i nameštaj stvaraju vizuelno veći prostor. Međutim, sve u njemu uklopljeno je tako da ukućani imaju prostorije koje bi imali i da žive u većem stanu.. Iako je male kvadrature, stan je veoma praktičan, pružajući prostor koji je potreban!

Sve deluje originalno i skladno... To samo pokazuje kako mali prostori. Čini se daje to malo prostora za život jedne mlade porodice. Mali stan od 40 metara kvadratnih izgleda kao idealno mesto za život dvoje ljudi. Ovaj stan ima samo 40 kvadrata.. Međutim, sve u njemu uklopljeno je tako da ukućani imaju prostorije koje bi imali i da žive u većem stanu.

Ovaj stan ima samo 40 kvadrata. Čak i jednostavni beli zidovi, drveni podovi, minimalni dekor i nameštaj stvaraju vizuelno veći prostor. Ovaj genijalni stan u kijevu u ukrajini ukupne površine nešto manje od 40 četvornih metara dobar je primjer kako promišljeno planiranje u prvoj fazi uređenja interijera može osigurati sve prostore potrebne za ugodan život i od malo kvadrata napraviti prostor koji ispunjava sve potrebe. Iako je male kvadrature, stan je veoma praktičan, pružajući prostor koji je potreban! Pored udobnog dnevnog boravka za uživanje sa prijateljima, bilo je mesta i za radni prostor. Mali stan se sastoji od kuhinje, malog dnevnog boravka, kupatila i spavaće sobe. Stan za radnike silikonske doline ovaj slatki stančić projektovao je „archer studio" za mlade radnike silikonske doline u san hozeu. Zahvaljujući sveobuhvatnoj reformi, u kojoj je mnogo toga promenjeno, mali stan od 40 kvadrata postao je harmoničan i prozračan prostor. Sve deluje originalno i skladno. Mali stan od 40 metara kvadratnih izgleda kao idealno mesto za život dvoje ljudi. Ovaj stan ima samo 40 kvadrata... Iako je male kvadrature, stan je veoma praktičan, pružajući prostor koji je potreban!
Ova garsonjera od 30 kvadrata projektovana je na osnovu istraživanja brodskih kabina i druhih malih prostora.. Kuhinja i trpezarija, dnevna i spavaća soba, kupatilo čak i balkom. Međutim, sve u njemu uklopljeno je tako da ukućani imaju prostorije koje bi imali i da žive u većem stanu. Ovaj genijalni stan u kijevu u ukrajini ukupne površine nešto manje od 40 četvornih metara dobar je primjer kako promišljeno planiranje u prvoj fazi uređenja interijera može osigurati sve prostore potrebne za ugodan život i od malo kvadrata napraviti prostor koji ispunjava sve potrebe. To samo pokazuje kako mali prostori. Mali stan se sastoji od kuhinje, malog dnevnog boravka, kupatila i spavaće sobe.. Mali stan se sastoji od kuhinje, malog dnevnog boravka, kupatila i spavaće sobe.

Iako je male kvadrature, stan je veoma praktičan, pružajući prostor koji je potreban!. Kuhinja i trpezarija, dnevna i spavaća soba, kupatilo čak i balkom. Čak i jednostavni beli zidovi, drveni podovi, minimalni dekor i nameštaj stvaraju vizuelno veći prostor. Pored udobnog dnevnog boravka za uživanje sa prijateljima, bilo je mesta i za radni prostor. Ova garsonjera od 30 kvadrata projektovana je na osnovu istraživanja brodskih kabina i druhih malih prostora. Ovaj genijalni stan u kijevu u ukrajini ukupne površine nešto manje od 40 četvornih metara dobar je primjer kako promišljeno planiranje u prvoj fazi uređenja interijera može osigurati sve prostore potrebne za ugodan život i od malo kvadrata napraviti prostor koji ispunjava sve potrebe.. Ova garsonjera od 30 kvadrata projektovana je na osnovu istraživanja brodskih kabina i druhih malih prostora.

Kuhinja i trpezarija, dnevna i spavaća soba, kupatilo čak i balkom... . Mali stan od 40 metara kvadratnih izgleda kao idealno mesto za život dvoje ljudi.

Stan za radnike silikonske doline ovaj slatki stančić projektovao je „archer studio" za mlade radnike silikonske doline u san hozeu... Ovaj genijalni stan u kijevu u ukrajini ukupne površine nešto manje od 40 četvornih metara dobar je primjer kako promišljeno planiranje u prvoj fazi uređenja interijera može osigurati sve prostore potrebne za ugodan život i od malo kvadrata napraviti prostor koji ispunjava sve potrebe. Ovaj stan ima samo 40 kvadrata. U uređenju enterijera ovog doma korišćen je ikea nameštaj koji se veoma lako montira, modernih je linija i funkcionalan. Sve deluje originalno i skladno. Mali stan se sastoji od kuhinje, malog dnevnog boravka, kupatila i spavaće sobe... Čak i jednostavni beli zidovi, drveni podovi, minimalni dekor i nameštaj stvaraju vizuelno veći prostor.

To samo pokazuje kako mali prostori. Iako je male kvadrature, stan je veoma praktičan, pružajući prostor koji je potreban! Stan za radnike silikonske doline ovaj slatki stančić projektovao je „archer studio" za mlade radnike silikonske doline u san hozeu. Ovaj genijalni stan u kijevu u ukrajini ukupne površine nešto manje od 40 četvornih metara dobar je primjer kako promišljeno planiranje u prvoj fazi uređenja interijera može osigurati sve prostore potrebne za ugodan život i od malo kvadrata napraviti prostor koji ispunjava sve potrebe. Čak i jednostavni beli zidovi, drveni podovi, minimalni dekor i nameštaj stvaraju vizuelno veći prostor... Čini se daje to malo prostora za život jedne mlade porodice.

Međutim, sve u njemu uklopljeno je tako da ukućani imaju prostorije koje bi imali i da žive u većem stanu. Ova garsonjera od 30 kvadrata projektovana je na osnovu istraživanja brodskih kabina i druhih malih prostora. To samo pokazuje kako mali prostori. Ovaj stan ima samo 40 kvadrata. Mali stan od 40 metara kvadratnih izgleda kao idealno mesto za život dvoje ljudi. Međutim, sve u njemu uklopljeno je tako da ukućani imaju prostorije koje bi imali i da žive u većem stanu. Čak i jednostavni beli zidovi, drveni podovi, minimalni dekor i nameštaj stvaraju vizuelno veći prostor. Zahvaljujući sveobuhvatnoj reformi, u kojoj je mnogo toga promenjeno, mali stan od 40 kvadrata postao je harmoničan i prozračan prostor. Stan za radnike silikonske doline ovaj slatki stančić projektovao je „archer studio" za mlade radnike silikonske doline u san hozeu. Kuhinja i trpezarija, dnevna i spavaća soba, kupatilo čak i balkom.

Ovaj stan ima samo 40 kvadrata... Mali stan od 40 metara kvadratnih izgleda kao idealno mesto za život dvoje ljudi. To samo pokazuje kako mali prostori.. Mali stan se sastoji od kuhinje, malog dnevnog boravka, kupatila i spavaće sobe.

Zahvaljujući sveobuhvatnoj reformi, u kojoj je mnogo toga promenjeno, mali stan od 40 kvadrata postao je harmoničan i prozračan prostor. Sve deluje originalno i skladno. Čak i jednostavni beli zidovi, drveni podovi, minimalni dekor i nameštaj stvaraju vizuelno veći prostor. Ovaj stan ima samo 40 kvadrata. Kuhinja i trpezarija, dnevna i spavaća soba, kupatilo čak i balkom. Iako je male kvadrature, stan je veoma praktičan, pružajući prostor koji je potreban!.. Kuhinja i trpezarija, dnevna i spavaća soba, kupatilo čak i balkom.

Zahvaljujući sveobuhvatnoj reformi, u kojoj je mnogo toga promenjeno, mali stan od 40 kvadrata postao je harmoničan i prozračan prostor.. U uređenju enterijera ovog doma korišćen je ikea nameštaj koji se veoma lako montira, modernih je linija i funkcionalan. To samo pokazuje kako mali prostori. Ovaj stan ima samo 40 kvadrata. Međutim, sve u njemu uklopljeno je tako da ukućani imaju prostorije koje bi imali i da žive u većem stanu... Ovaj genijalni stan u kijevu u ukrajini ukupne površine nešto manje od 40 četvornih metara dobar je primjer kako promišljeno planiranje u prvoj fazi uređenja interijera može osigurati sve prostore potrebne za ugodan život i od malo kvadrata napraviti prostor koji ispunjava sve potrebe.

To samo pokazuje kako mali prostori... Mali stan se sastoji od kuhinje, malog dnevnog boravka, kupatila i spavaće sobe. U uređenju enterijera ovog doma korišćen je ikea nameštaj koji se veoma lako montira, modernih je linija i funkcionalan. Pored udobnog dnevnog boravka za uživanje sa prijateljima, bilo je mesta i za radni prostor. Sve deluje originalno i skladno. Čak i jednostavni beli zidovi, drveni podovi, minimalni dekor i nameštaj stvaraju vizuelno veći prostor... Čini se daje to malo prostora za život jedne mlade porodice.

Čini se daje to malo prostora za život jedne mlade porodice... Pored udobnog dnevnog boravka za uživanje sa prijateljima, bilo je mesta i za radni prostor. Čak i jednostavni beli zidovi, drveni podovi, minimalni dekor i nameštaj stvaraju vizuelno veći prostor. To samo pokazuje kako mali prostori. Stan za radnike silikonske doline ovaj slatki stančić projektovao je „archer studio" za mlade radnike silikonske doline u san hozeu. Kuhinja i trpezarija, dnevna i spavaća soba, kupatilo čak i balkom. Mali stan od 40 metara kvadratnih izgleda kao idealno mesto za život dvoje ljudi. Zahvaljujući sveobuhvatnoj reformi, u kojoj je mnogo toga promenjeno, mali stan od 40 kvadrata postao je harmoničan i prozračan prostor. Ova garsonjera od 30 kvadrata projektovana je na osnovu istraživanja brodskih kabina i druhih malih prostora... To samo pokazuje kako mali prostori.

Ovaj genijalni stan u kijevu u ukrajini ukupne površine nešto manje od 40 četvornih metara dobar je primjer kako promišljeno planiranje u prvoj fazi uređenja interijera može osigurati sve prostore potrebne za ugodan život i od malo kvadrata napraviti prostor koji ispunjava sve potrebe. Ova garsonjera od 30 kvadrata projektovana je na osnovu istraživanja brodskih kabina i druhih malih prostora. Zahvaljujući sveobuhvatnoj reformi, u kojoj je mnogo toga promenjeno, mali stan od 40 kvadrata postao je harmoničan i prozračan prostor. Pored udobnog dnevnog boravka za uživanje sa prijateljima, bilo je mesta i za radni prostor... Sve deluje originalno i skladno.
Ovaj stan ima samo 40 kvadrata... Čak i jednostavni beli zidovi, drveni podovi, minimalni dekor i nameštaj stvaraju vizuelno veći prostor. Iako je male kvadrature, stan je veoma praktičan, pružajući prostor koji je potreban!

Kuhinja i trpezarija, dnevna i spavaća soba, kupatilo čak i balkom... Pored udobnog dnevnog boravka za uživanje sa prijateljima, bilo je mesta i za radni prostor. Ovaj stan ima samo 40 kvadrata. Stan za radnike silikonske doline ovaj slatki stančić projektovao je „archer studio" za mlade radnike silikonske doline u san hozeu. Iako je male kvadrature, stan je veoma praktičan, pružajući prostor koji je potreban! Kuhinja i trpezarija, dnevna i spavaća soba, kupatilo čak i balkom. Mali stan se sastoji od kuhinje, malog dnevnog boravka, kupatila i spavaće sobe. Čini se daje to malo prostora za život jedne mlade porodice. Čak i jednostavni beli zidovi, drveni podovi, minimalni dekor i nameštaj stvaraju vizuelno veći prostor. Ovaj genijalni stan u kijevu u ukrajini ukupne površine nešto manje od 40 četvornih metara dobar je primjer kako promišljeno planiranje u prvoj fazi uređenja interijera može osigurati sve prostore potrebne za ugodan život i od malo kvadrata napraviti prostor koji ispunjava sve potrebe. Ova garsonjera od 30 kvadrata projektovana je na osnovu istraživanja brodskih kabina i druhih malih prostora... Ovaj stan ima samo 40 kvadrata.

Pored udobnog dnevnog boravka za uživanje sa prijateljima, bilo je mesta i za radni prostor. Sve deluje originalno i skladno. Iako je male kvadrature, stan je veoma praktičan, pružajući prostor koji je potreban! Ova garsonjera od 30 kvadrata projektovana je na osnovu istraživanja brodskih kabina i druhih malih prostora. Međutim, sve u njemu uklopljeno je tako da ukućani imaju prostorije koje bi imali i da žive u većem stanu. Mali stan se sastoji od kuhinje, malog dnevnog boravka, kupatila i spavaće sobe. U uređenju enterijera ovog doma korišćen je ikea nameštaj koji se veoma lako montira, modernih je linija i funkcionalan. Ovaj genijalni stan u kijevu u ukrajini ukupne površine nešto manje od 40 četvornih metara dobar je primjer kako promišljeno planiranje u prvoj fazi uređenja interijera može osigurati sve prostore potrebne za ugodan život i od malo kvadrata napraviti prostor koji ispunjava sve potrebe. Ovaj stan ima samo 40 kvadrata. Stan za radnike silikonske doline ovaj slatki stančić projektovao je „archer studio" za mlade radnike silikonske doline u san hozeu. Čini se daje to malo prostora za život jedne mlade porodice.. Ovaj genijalni stan u kijevu u ukrajini ukupne površine nešto manje od 40 četvornih metara dobar je primjer kako promišljeno planiranje u prvoj fazi uređenja interijera može osigurati sve prostore potrebne za ugodan život i od malo kvadrata napraviti prostor koji ispunjava sve potrebe.

Mali stan od 40 metara kvadratnih izgleda kao idealno mesto za život dvoje ljudi. Ovaj stan ima samo 40 kvadrata. Čak i jednostavni beli zidovi, drveni podovi, minimalni dekor i nameštaj stvaraju vizuelno veći prostor. Čini se daje to malo prostora za život jedne mlade porodice. Stan za radnike silikonske doline ovaj slatki stančić projektovao je „archer studio" za mlade radnike silikonske doline u san hozeu... Ovaj stan ima samo 40 kvadrata.

Zahvaljujući sveobuhvatnoj reformi, u kojoj je mnogo toga promenjeno, mali stan od 40 kvadrata postao je harmoničan i prozračan prostor... Čini se daje to malo prostora za život jedne mlade porodice. Sve deluje originalno i skladno. Mali stan od 40 metara kvadratnih izgleda kao idealno mesto za život dvoje ljudi. Stan za radnike silikonske doline ovaj slatki stančić projektovao je „archer studio" za mlade radnike silikonske doline u san hozeu. Međutim, sve u njemu uklopljeno je tako da ukućani imaju prostorije koje bi imali i da žive u većem stanu. Ovaj stan ima samo 40 kvadrata. Čak i jednostavni beli zidovi, drveni podovi, minimalni dekor i nameštaj stvaraju vizuelno veći prostor. Kuhinja i trpezarija, dnevna i spavaća soba, kupatilo čak i balkom. Ovaj genijalni stan u kijevu u ukrajini ukupne površine nešto manje od 40 četvornih metara dobar je primjer kako promišljeno planiranje u prvoj fazi uređenja interijera može osigurati sve prostore potrebne za ugodan život i od malo kvadrata napraviti prostor koji ispunjava sve potrebe... Kuhinja i trpezarija, dnevna i spavaća soba, kupatilo čak i balkom.
.jpg)
Iako je male kvadrature, stan je veoma praktičan, pružajući prostor koji je potreban!. Sve deluje originalno i skladno. Čini se daje to malo prostora za život jedne mlade porodice. Mali stan se sastoji od kuhinje, malog dnevnog boravka, kupatila i spavaće sobe. Iako je male kvadrature, stan je veoma praktičan, pružajući prostor koji je potreban!. Mali stan od 40 metara kvadratnih izgleda kao idealno mesto za život dvoje ljudi.

Kuhinja i trpezarija, dnevna i spavaća soba, kupatilo čak i balkom... Stan za radnike silikonske doline ovaj slatki stančić projektovao je „archer studio" za mlade radnike silikonske doline u san hozeu. Zahvaljujući sveobuhvatnoj reformi, u kojoj je mnogo toga promenjeno, mali stan od 40 kvadrata postao je harmoničan i prozračan prostor. Ova garsonjera od 30 kvadrata projektovana je na osnovu istraživanja brodskih kabina i druhih malih prostora. Ovaj genijalni stan u kijevu u ukrajini ukupne površine nešto manje od 40 četvornih metara dobar je primjer kako promišljeno planiranje u prvoj fazi uređenja interijera može osigurati sve prostore potrebne za ugodan život i od malo kvadrata napraviti prostor koji ispunjava sve potrebe... Mali stan od 40 metara kvadratnih izgleda kao idealno mesto za život dvoje ljudi.

Ovaj stan ima samo 40 kvadrata. Ova garsonjera od 30 kvadrata projektovana je na osnovu istraživanja brodskih kabina i druhih malih prostora. Zahvaljujući sveobuhvatnoj reformi, u kojoj je mnogo toga promenjeno, mali stan od 40 kvadrata postao je harmoničan i prozračan prostor. To samo pokazuje kako mali prostori. Čak i jednostavni beli zidovi, drveni podovi, minimalni dekor i nameštaj stvaraju vizuelno veći prostor. Čini se daje to malo prostora za život jedne mlade porodice. Čak i jednostavni beli zidovi, drveni podovi, minimalni dekor i nameštaj stvaraju vizuelno veći prostor.

Sve deluje originalno i skladno.. Čak i jednostavni beli zidovi, drveni podovi, minimalni dekor i nameštaj stvaraju vizuelno veći prostor. Ovaj stan ima samo 40 kvadrata. Ova garsonjera od 30 kvadrata projektovana je na osnovu istraživanja brodskih kabina i druhih malih prostora.

Mali stan se sastoji od kuhinje, malog dnevnog boravka, kupatila i spavaće sobe. Iako je male kvadrature, stan je veoma praktičan, pružajući prostor koji je potreban! Međutim, sve u njemu uklopljeno je tako da ukućani imaju prostorije koje bi imali i da žive u većem stanu. Sve deluje originalno i skladno. U uređenju enterijera ovog doma korišćen je ikea nameštaj koji se veoma lako montira, modernih je linija i funkcionalan. Stan za radnike silikonske doline ovaj slatki stančić projektovao je „archer studio" za mlade radnike silikonske doline u san hozeu. Ovaj genijalni stan u kijevu u ukrajini ukupne površine nešto manje od 40 četvornih metara dobar je primjer kako promišljeno planiranje u prvoj fazi uređenja interijera može osigurati sve prostore potrebne za ugodan život i od malo kvadrata napraviti prostor koji ispunjava sve potrebe. To samo pokazuje kako mali prostori. Čini se daje to malo prostora za život jedne mlade porodice. Zahvaljujući sveobuhvatnoj reformi, u kojoj je mnogo toga promenjeno, mali stan od 40 kvadrata postao je harmoničan i prozračan prostor.. Čini se daje to malo prostora za život jedne mlade porodice.
.jpg)
Ovaj genijalni stan u kijevu u ukrajini ukupne površine nešto manje od 40 četvornih metara dobar je primjer kako promišljeno planiranje u prvoj fazi uređenja interijera može osigurati sve prostore potrebne za ugodan život i od malo kvadrata napraviti prostor koji ispunjava sve potrebe. Pored udobnog dnevnog boravka za uživanje sa prijateljima, bilo je mesta i za radni prostor. Mali stan od 40 metara kvadratnih izgleda kao idealno mesto za život dvoje ljudi. Mali stan se sastoji od kuhinje, malog dnevnog boravka, kupatila i spavaće sobe. Zahvaljujući sveobuhvatnoj reformi, u kojoj je mnogo toga promenjeno, mali stan od 40 kvadrata postao je harmoničan i prozračan prostor. U uređenju enterijera ovog doma korišćen je ikea nameštaj koji se veoma lako montira, modernih je linija i funkcionalan. Ovaj genijalni stan u kijevu u ukrajini ukupne površine nešto manje od 40 četvornih metara dobar je primjer kako promišljeno planiranje u prvoj fazi uređenja interijera može osigurati sve prostore potrebne za ugodan život i od malo kvadrata napraviti prostor koji ispunjava sve potrebe. Ovaj stan ima samo 40 kvadrata. Iako je male kvadrature, stan je veoma praktičan, pružajući prostor koji je potreban! Stan za radnike silikonske doline ovaj slatki stančić projektovao je „archer studio" za mlade radnike silikonske doline u san hozeu. Sve deluje originalno i skladno. Ovaj genijalni stan u kijevu u ukrajini ukupne površine nešto manje od 40 četvornih metara dobar je primjer kako promišljeno planiranje u prvoj fazi uređenja interijera može osigurati sve prostore potrebne za ugodan život i od malo kvadrata napraviti prostor koji ispunjava sve potrebe.

Kuhinja i trpezarija, dnevna i spavaća soba, kupatilo čak i balkom. Čini se daje to malo prostora za život jedne mlade porodice. Sve deluje originalno i skladno. Mali stan se sastoji od kuhinje, malog dnevnog boravka, kupatila i spavaće sobe. Iako je male kvadrature, stan je veoma praktičan, pružajući prostor koji je potreban!.. Ovaj genijalni stan u kijevu u ukrajini ukupne površine nešto manje od 40 četvornih metara dobar je primjer kako promišljeno planiranje u prvoj fazi uređenja interijera može osigurati sve prostore potrebne za ugodan život i od malo kvadrata napraviti prostor koji ispunjava sve potrebe.

To samo pokazuje kako mali prostori. Ova garsonjera od 30 kvadrata projektovana je na osnovu istraživanja brodskih kabina i druhih malih prostora. Stan za radnike silikonske doline ovaj slatki stančić projektovao je „archer studio" za mlade radnike silikonske doline u san hozeu. Mali stan od 40 metara kvadratnih izgleda kao idealno mesto za život dvoje ljudi. Sve deluje originalno i skladno... Čini se daje to malo prostora za život jedne mlade porodice.

Zahvaljujući sveobuhvatnoj reformi, u kojoj je mnogo toga promenjeno, mali stan od 40 kvadrata postao je harmoničan i prozračan prostor.. Mali stan od 40 metara kvadratnih izgleda kao idealno mesto za život dvoje ljudi. Ova garsonjera od 30 kvadrata projektovana je na osnovu istraživanja brodskih kabina i druhih malih prostora. Kuhinja i trpezarija, dnevna i spavaća soba, kupatilo čak i balkom. Čini se daje to malo prostora za život jedne mlade porodice. Ovaj stan ima samo 40 kvadrata. Zahvaljujući sveobuhvatnoj reformi, u kojoj je mnogo toga promenjeno, mali stan od 40 kvadrata postao je harmoničan i prozračan prostor. Pored udobnog dnevnog boravka za uživanje sa prijateljima, bilo je mesta i za radni prostor. Ovaj genijalni stan u kijevu u ukrajini ukupne površine nešto manje od 40 četvornih metara dobar je primjer kako promišljeno planiranje u prvoj fazi uređenja interijera može osigurati sve prostore potrebne za ugodan život i od malo kvadrata napraviti prostor koji ispunjava sve potrebe.

Čini se daje to malo prostora za život jedne mlade porodice. Međutim, sve u njemu uklopljeno je tako da ukućani imaju prostorije koje bi imali i da žive u većem stanu. Čini se daje to malo prostora za život jedne mlade porodice. U uređenju enterijera ovog doma korišćen je ikea nameštaj koji se veoma lako montira, modernih je linija i funkcionalan. Stan za radnike silikonske doline ovaj slatki stančić projektovao je „archer studio" za mlade radnike silikonske doline u san hozeu. Ovaj stan ima samo 40 kvadrata. Zahvaljujući sveobuhvatnoj reformi, u kojoj je mnogo toga promenjeno, mali stan od 40 kvadrata postao je harmoničan i prozračan prostor... Stan za radnike silikonske doline ovaj slatki stančić projektovao je „archer studio" za mlade radnike silikonske doline u san hozeu.

Kuhinja i trpezarija, dnevna i spavaća soba, kupatilo čak i balkom. Ova garsonjera od 30 kvadrata projektovana je na osnovu istraživanja brodskih kabina i druhih malih prostora. Međutim, sve u njemu uklopljeno je tako da ukućani imaju prostorije koje bi imali i da žive u većem stanu. U uređenju enterijera ovog doma korišćen je ikea nameštaj koji se veoma lako montira, modernih je linija i funkcionalan. To samo pokazuje kako mali prostori. Ovaj stan ima samo 40 kvadrata. Zahvaljujući sveobuhvatnoj reformi, u kojoj je mnogo toga promenjeno, mali stan od 40 kvadrata postao je harmoničan i prozračan prostor. Sve deluje originalno i skladno. Kuhinja i trpezarija, dnevna i spavaća soba, kupatilo čak i balkom.

Ovaj genijalni stan u kijevu u ukrajini ukupne površine nešto manje od 40 četvornih metara dobar je primjer kako promišljeno planiranje u prvoj fazi uređenja interijera može osigurati sve prostore potrebne za ugodan život i od malo kvadrata napraviti prostor koji ispunjava sve potrebe... Ova garsonjera od 30 kvadrata projektovana je na osnovu istraživanja brodskih kabina i druhih malih prostora. Stan za radnike silikonske doline ovaj slatki stančić projektovao je „archer studio" za mlade radnike silikonske doline u san hozeu.. Pored udobnog dnevnog boravka za uživanje sa prijateljima, bilo je mesta i za radni prostor.

Sve deluje originalno i skladno. U uređenju enterijera ovog doma korišćen je ikea nameštaj koji se veoma lako montira, modernih je linija i funkcionalan. Čini se daje to malo prostora za život jedne mlade porodice. Međutim, sve u njemu uklopljeno je tako da ukućani imaju prostorije koje bi imali i da žive u većem stanu. Sve deluje originalno i skladno. Mali stan od 40 metara kvadratnih izgleda kao idealno mesto za život dvoje ljudi. Ovaj stan ima samo 40 kvadrata. Kuhinja i trpezarija, dnevna i spavaća soba, kupatilo čak i balkom. U uređenju enterijera ovog doma korišćen je ikea nameštaj koji se veoma lako montira, modernih je linija i funkcionalan.
Sve deluje originalno i skladno. Zahvaljujući sveobuhvatnoj reformi, u kojoj je mnogo toga promenjeno, mali stan od 40 kvadrata postao je harmoničan i prozračan prostor. Mali stan od 40 metara kvadratnih izgleda kao idealno mesto za život dvoje ljudi. Sve deluje originalno i skladno. Ovaj genijalni stan u kijevu u ukrajini ukupne površine nešto manje od 40 četvornih metara dobar je primjer kako promišljeno planiranje u prvoj fazi uređenja interijera može osigurati sve prostore potrebne za ugodan život i od malo kvadrata napraviti prostor koji ispunjava sve potrebe.. Međutim, sve u njemu uklopljeno je tako da ukućani imaju prostorije koje bi imali i da žive u većem stanu.

Mali stan se sastoji od kuhinje, malog dnevnog boravka, kupatila i spavaće sobe.. Sve deluje originalno i skladno. Stan za radnike silikonske doline ovaj slatki stančić projektovao je „archer studio" za mlade radnike silikonske doline u san hozeu. Iako je male kvadrature, stan je veoma praktičan, pružajući prostor koji je potreban! Čini se daje to malo prostora za život jedne mlade porodice.. Iako je male kvadrature, stan je veoma praktičan, pružajući prostor koji je potreban!

Kuhinja i trpezarija, dnevna i spavaća soba, kupatilo čak i balkom. Međutim, sve u njemu uklopljeno je tako da ukućani imaju prostorije koje bi imali i da žive u većem stanu. Sve deluje originalno i skladno. Mali stan se sastoji od kuhinje, malog dnevnog boravka, kupatila i spavaće sobe. Kuhinja i trpezarija, dnevna i spavaća soba, kupatilo čak i balkom. Ovaj stan ima samo 40 kvadrata.. Čak i jednostavni beli zidovi, drveni podovi, minimalni dekor i nameštaj stvaraju vizuelno veći prostor.

Iako je male kvadrature, stan je veoma praktičan, pružajući prostor koji je potreban!. Zahvaljujući sveobuhvatnoj reformi, u kojoj je mnogo toga promenjeno, mali stan od 40 kvadrata postao je harmoničan i prozračan prostor. Ovaj genijalni stan u kijevu u ukrajini ukupne površine nešto manje od 40 četvornih metara dobar je primjer kako promišljeno planiranje u prvoj fazi uređenja interijera može osigurati sve prostore potrebne za ugodan život i od malo kvadrata napraviti prostor koji ispunjava sve potrebe. Kuhinja i trpezarija, dnevna i spavaća soba, kupatilo čak i balkom. Ova garsonjera od 30 kvadrata projektovana je na osnovu istraživanja brodskih kabina i druhih malih prostora. Međutim, sve u njemu uklopljeno je tako da ukućani imaju prostorije koje bi imali i da žive u većem stanu. To samo pokazuje kako mali prostori. Pored udobnog dnevnog boravka za uživanje sa prijateljima, bilo je mesta i za radni prostor. Iako je male kvadrature, stan je veoma praktičan, pružajući prostor koji je potreban! Sve deluje originalno i skladno. Ova garsonjera od 30 kvadrata projektovana je na osnovu istraživanja brodskih kabina i druhih malih prostora.

Ovaj genijalni stan u kijevu u ukrajini ukupne površine nešto manje od 40 četvornih metara dobar je primjer kako promišljeno planiranje u prvoj fazi uređenja interijera može osigurati sve prostore potrebne za ugodan život i od malo kvadrata napraviti prostor koji ispunjava sve potrebe.. Ovaj stan ima samo 40 kvadrata. U uređenju enterijera ovog doma korišćen je ikea nameštaj koji se veoma lako montira, modernih je linija i funkcionalan. Sve deluje originalno i skladno. Međutim, sve u njemu uklopljeno je tako da ukućani imaju prostorije koje bi imali i da žive u većem stanu. To samo pokazuje kako mali prostori. Mali stan se sastoji od kuhinje, malog dnevnog boravka, kupatila i spavaće sobe. Stan za radnike silikonske doline ovaj slatki stančić projektovao je „archer studio" za mlade radnike silikonske doline u san hozeu. Mali stan od 40 metara kvadratnih izgleda kao idealno mesto za život dvoje ljudi. Pored udobnog dnevnog boravka za uživanje sa prijateljima, bilo je mesta i za radni prostor. Kuhinja i trpezarija, dnevna i spavaća soba, kupatilo čak i balkom.. Mali stan se sastoji od kuhinje, malog dnevnog boravka, kupatila i spavaće sobe.

Čini se daje to malo prostora za život jedne mlade porodice. Sve deluje originalno i skladno. Zahvaljujući sveobuhvatnoj reformi, u kojoj je mnogo toga promenjeno, mali stan od 40 kvadrata postao je harmoničan i prozračan prostor. Mali stan od 40 metara kvadratnih izgleda kao idealno mesto za život dvoje ljudi. U uređenju enterijera ovog doma korišćen je ikea nameštaj koji se veoma lako montira, modernih je linija i funkcionalan. Pored udobnog dnevnog boravka za uživanje sa prijateljima, bilo je mesta i za radni prostor. Iako je male kvadrature, stan je veoma praktičan, pružajući prostor koji je potreban! To samo pokazuje kako mali prostori. Ovaj stan ima samo 40 kvadrata. Čini se daje to malo prostora za život jedne mlade porodice... Stan za radnike silikonske doline ovaj slatki stančić projektovao je „archer studio" za mlade radnike silikonske doline u san hozeu.
Ovaj genijalni stan u kijevu u ukrajini ukupne površine nešto manje od 40 četvornih metara dobar je primjer kako promišljeno planiranje u prvoj fazi uređenja interijera može osigurati sve prostore potrebne za ugodan život i od malo kvadrata napraviti prostor koji ispunjava sve potrebe... Čini se daje to malo prostora za život jedne mlade porodice. U uređenju enterijera ovog doma korišćen je ikea nameštaj koji se veoma lako montira, modernih je linija i funkcionalan. Međutim, sve u njemu uklopljeno je tako da ukućani imaju prostorije koje bi imali i da žive u većem stanu. Iako je male kvadrature, stan je veoma praktičan, pružajući prostor koji je potreban! Zahvaljujući sveobuhvatnoj reformi, u kojoj je mnogo toga promenjeno, mali stan od 40 kvadrata postao je harmoničan i prozračan prostor. Sve deluje originalno i skladno. Čak i jednostavni beli zidovi, drveni podovi, minimalni dekor i nameštaj stvaraju vizuelno veći prostor. Ovaj genijalni stan u kijevu u ukrajini ukupne površine nešto manje od 40 četvornih metara dobar je primjer kako promišljeno planiranje u prvoj fazi uređenja interijera može osigurati sve prostore potrebne za ugodan život i od malo kvadrata napraviti prostor koji ispunjava sve potrebe. Stan za radnike silikonske doline ovaj slatki stančić projektovao je „archer studio" za mlade radnike silikonske doline u san hozeu. Čini se daje to malo prostora za život jedne mlade porodice.